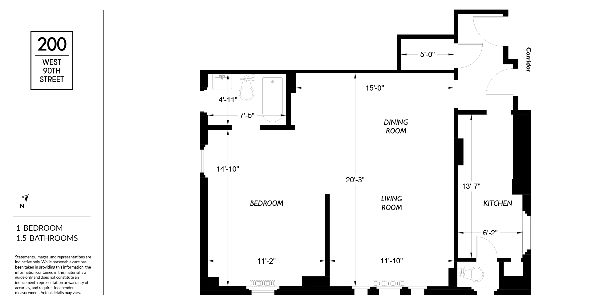
200West_90thStreet – 1 Br – 1.5 Bath
Notice: JavaScript is required for this content.