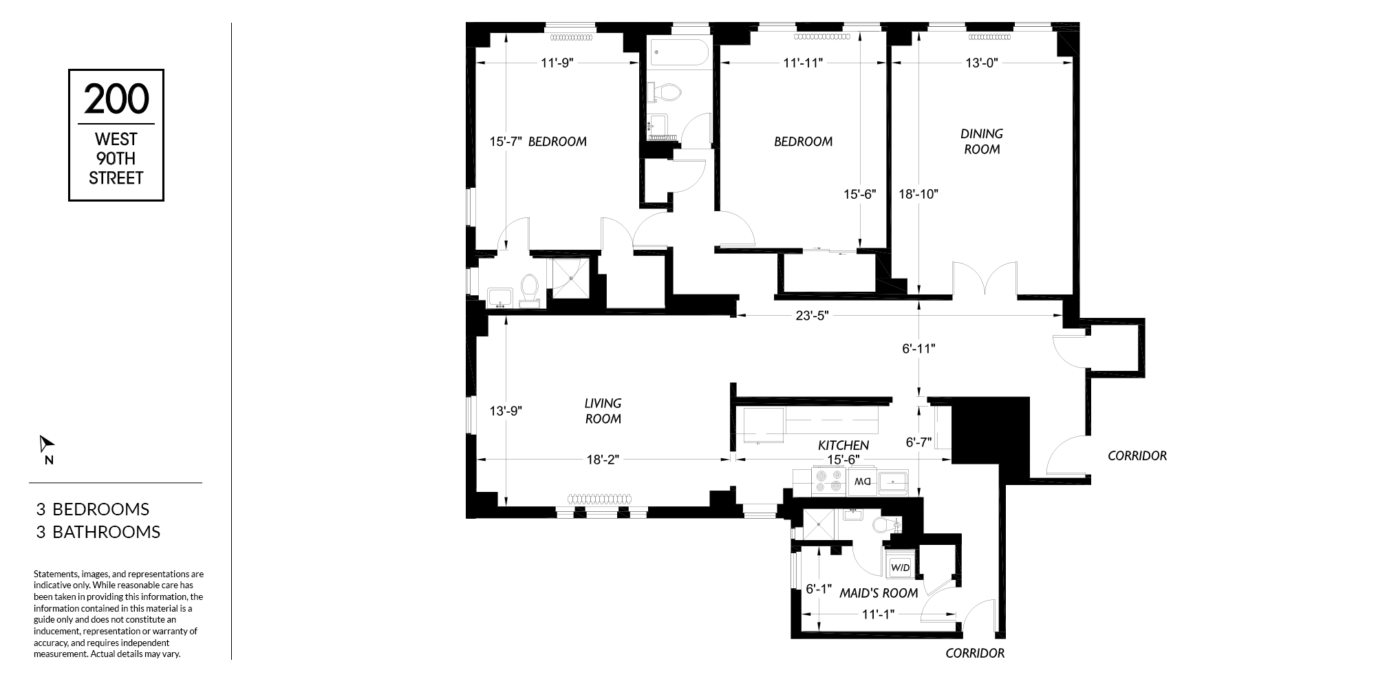
200West_90thStreet – 3 Br – 3 Bath
Notice: JavaScript is required for this content.