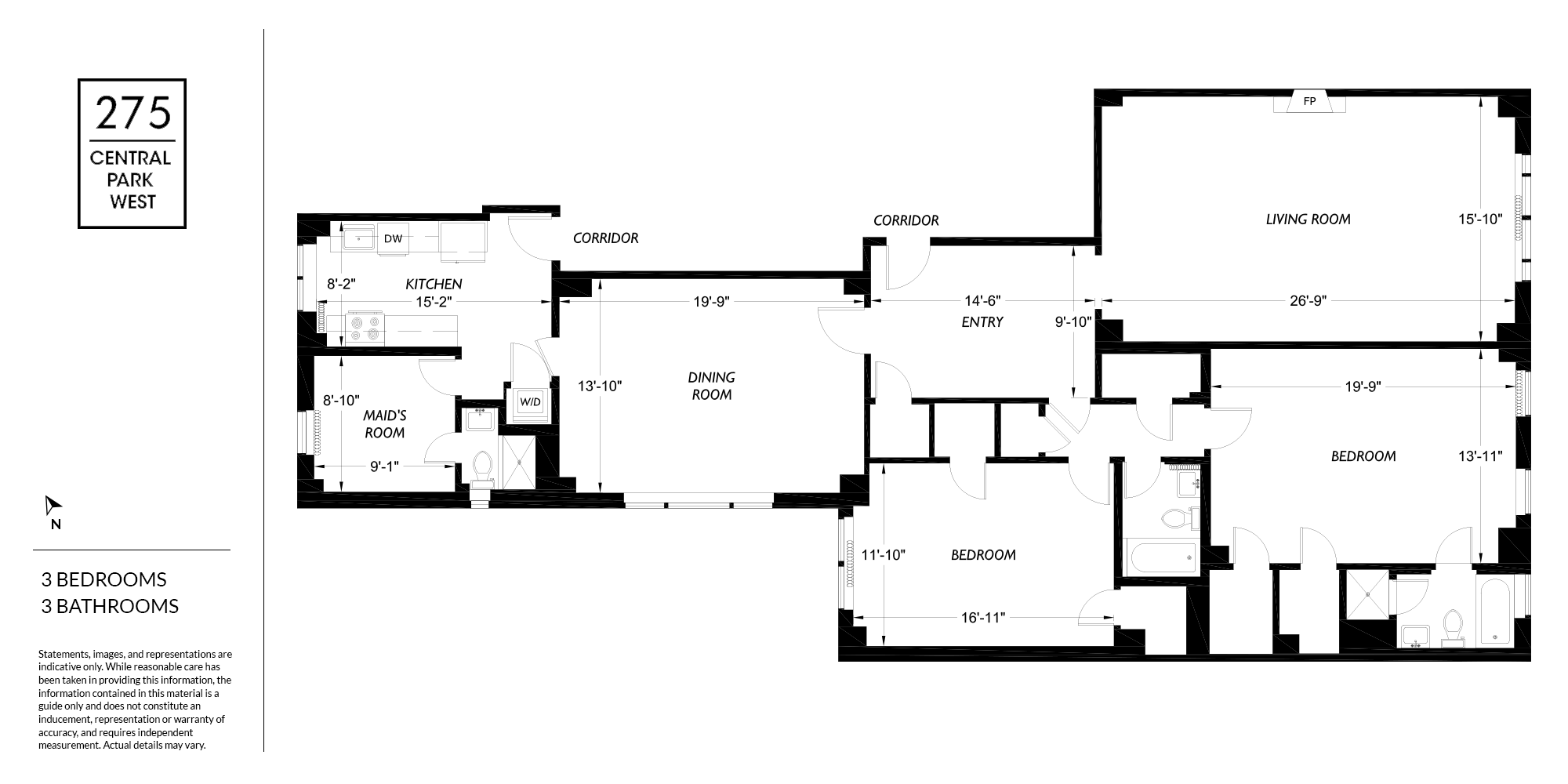
275 CPW – 3 Bedroom – 3 Bath
Notice: JavaScript is required for this content.